East Boston | Multifamily Housing
MULTI-FAMILY HOUSING I DIVERSE NEIGHBORHOOD I COMMUNITY NEEDS I FOOD ACCESSIBILITY I MULTI-GENERATIONAL LIVING I COMMUNITY-DRIVEN DESIGN I MIXED-INCOME HOUSING I PUBLIC REALM ACTIVATION
This urban housing project responds to East Boston's diverse demographic by addressing key community needs, including schooling and food accessibility.
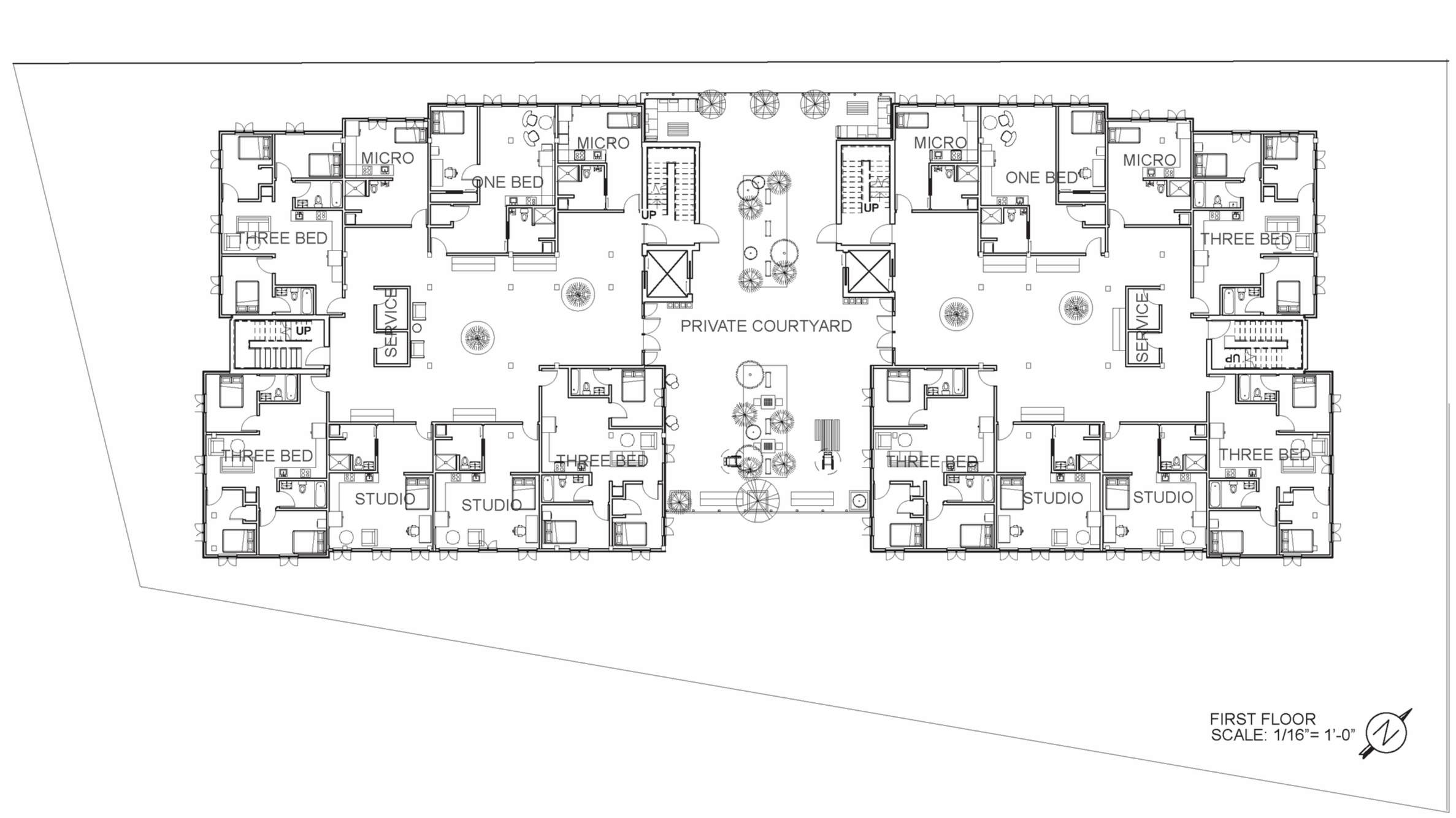
Through site-specific research and urban analysis. The design integrates a mix of residential unit types from micro-units, studios, one-bedroom units, and three-bedroom apartments to accommodate a range of household sizes and income levels.
The project incorporates communal spaces, a daycare, market, gym, and retail frontage, all connected by pedestrianonly streets and green spaces.
These elements foster community interaction, social equity. and accessibility while activating the public realm and promoting sustainable, multi-generational urban living.
Street Perspective
Ground Floor
First Floor
Side Elevation
Short Section
Longitudinal Section
Study Model